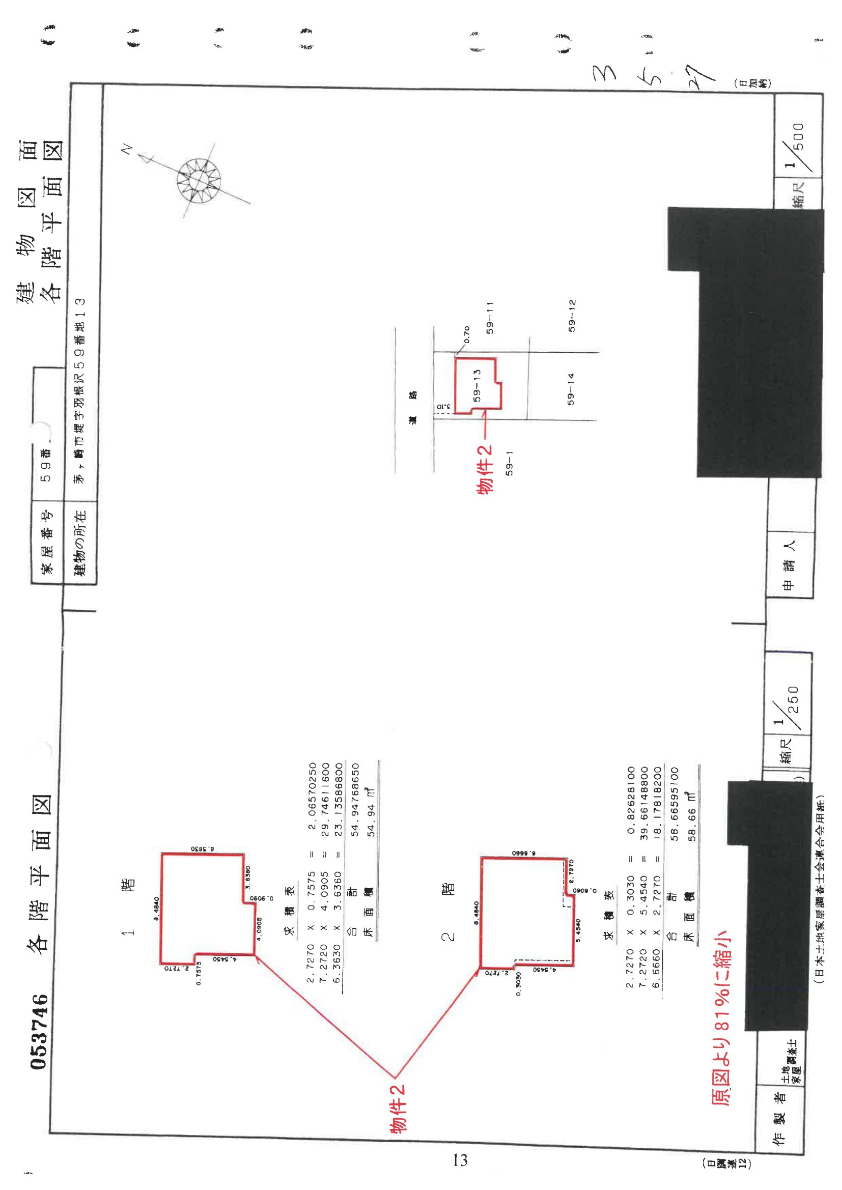
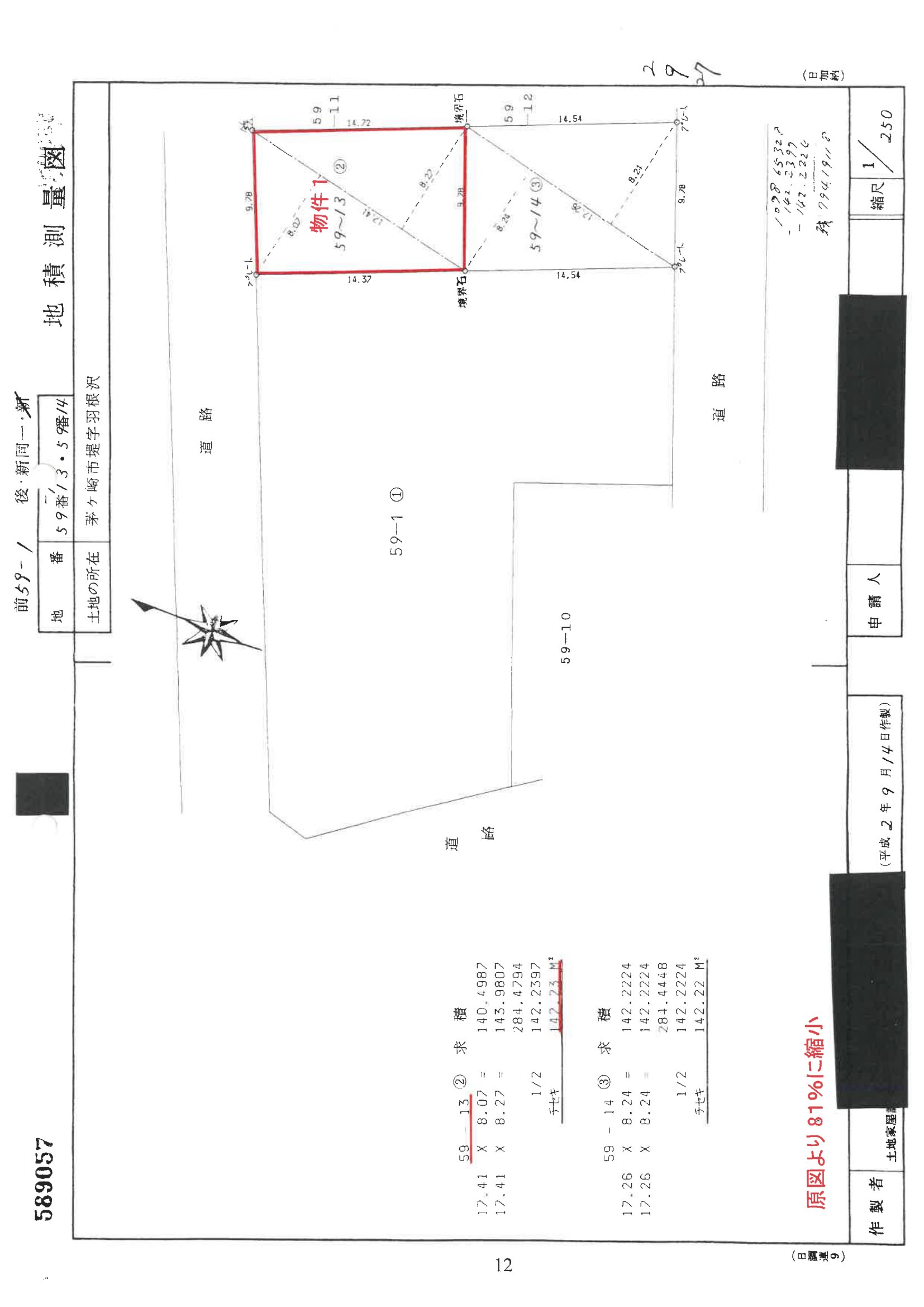
神奈川県 茅ヶ崎市神奈川県茅ヶ崎市堤字羽根沢 59番13
🚉香川 徒歩39分
売却基準価額 (裁判所評価額)
1,521万円
香川 徒歩39分(2.5 km)
北茅ヶ崎 徒歩51分(3.2 km)
物件の概況
| contact_url | https://www.bit.courts.go.jp/info/info_31211.html |
|---|---|
| 入札期間 | 令和08年05月19日 〜 令和08年05月26日 |
| 開札期日 | 令和08年06月02日 |
| 公示開始日 | 令和08年04月16日 |
| 閲覧開始日 | 令和08年04月16日 |
🤖 AI 総合分析レポート
機能アップデート中
機能は現在開発中です。
次期バージョンでアップデートされる予定です。



















