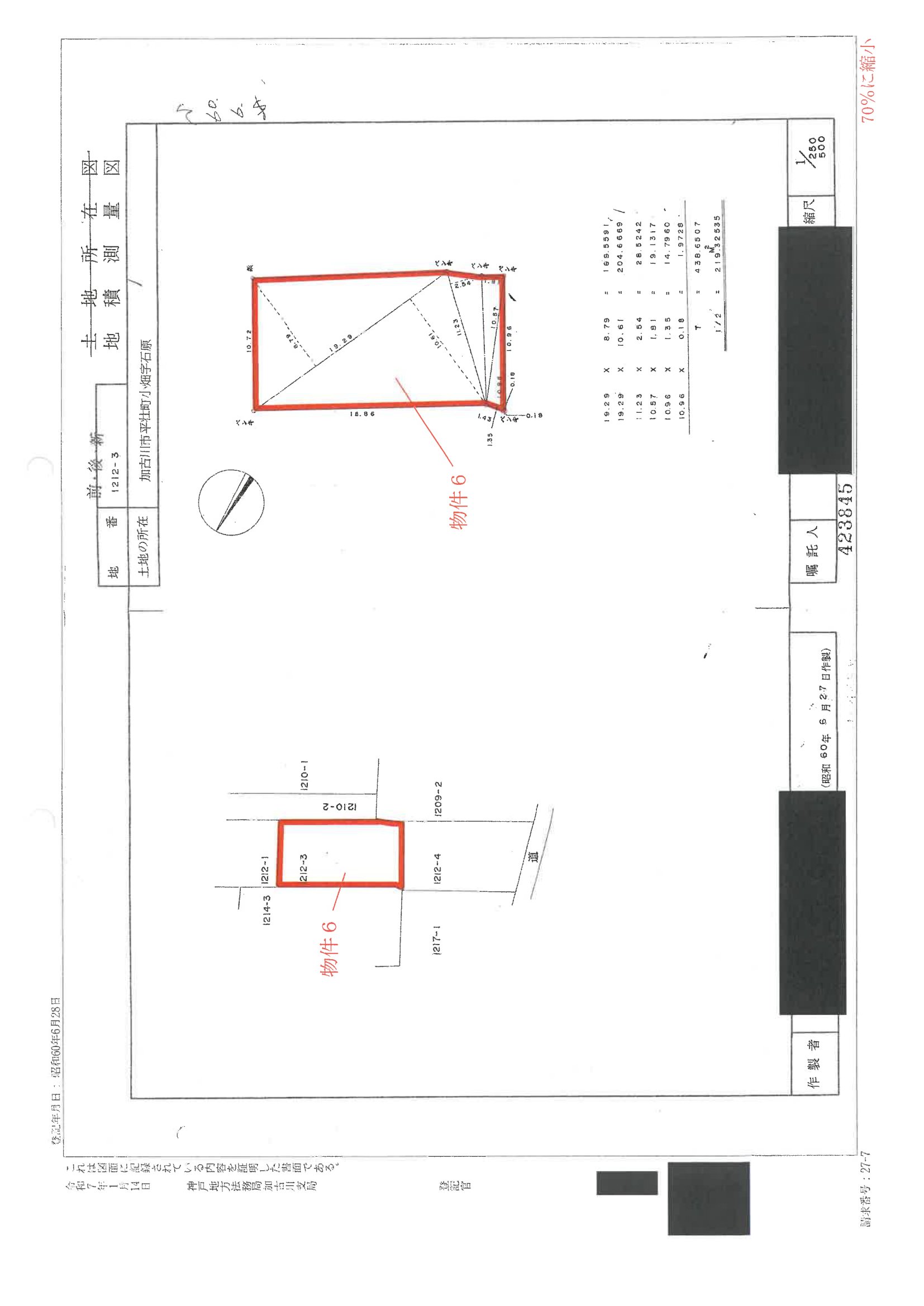
兵庫県 加古川市兵庫県加古川市平荘町小畑字石原 1210番2
🚉神野 徒歩47分
売却基準価額 (裁判所評価額)
373万円
神野 徒歩47分(3.0 km)
日岡 徒歩60分(3.8 km)
物件の概況
| contact_url | https://www.bit.courts.go.jp/info/info_33332.html |
|---|---|
| 入札期間 | 令和08年07月16日 〜 令和08年07月23日 |
| 開札期日 | 令和08年07月29日 |
| 公示開始日 | 令和08年03月24日 |
| 閲覧開始日 | 令和08年03月24日 |
🤖 AI 総合分析レポート
機能アップデート中
機能は現在開発中です。
次期バージョンでアップデートされる予定です。




















