KeibaiKoubaiFinder
1065
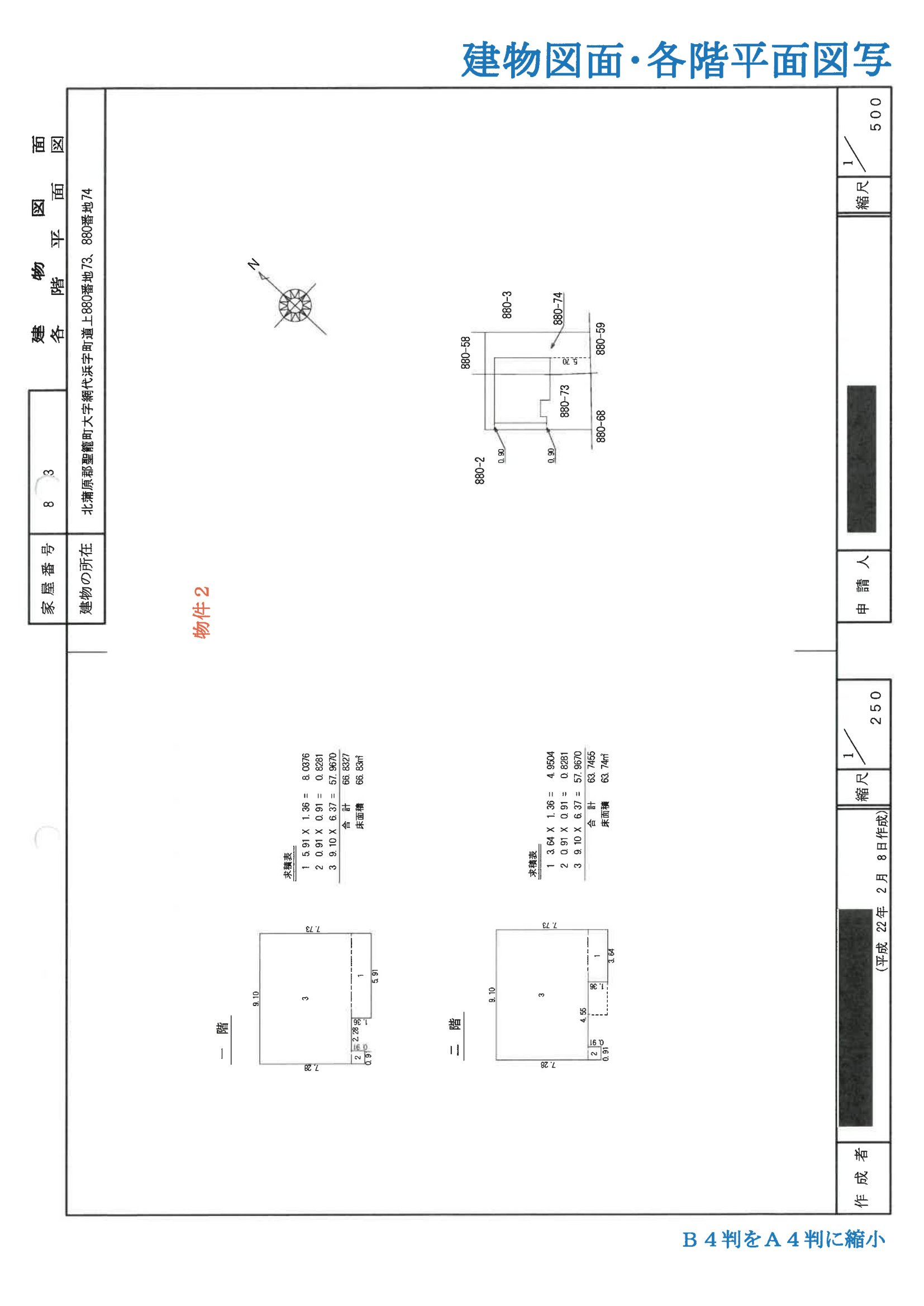
【2,800,000円】新潟県北蒲原郡聖籠町大字網代浜字町道上 の戸建て|新潟地方裁判所 競売物件情報|Keibai Finder