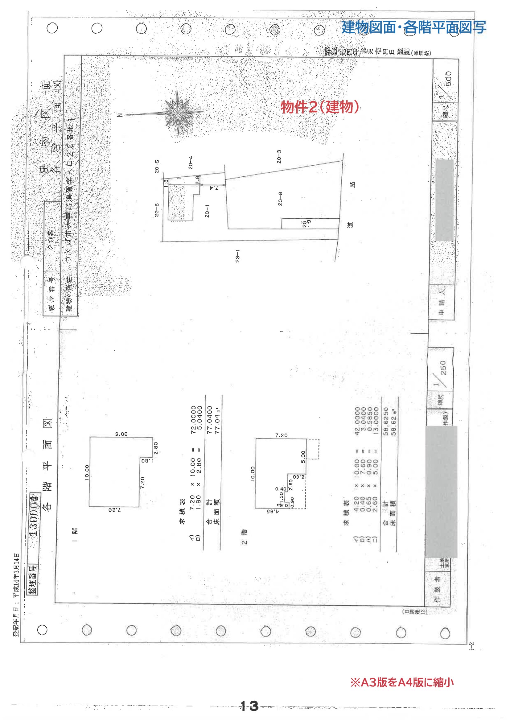
茨城県 つくば市茨城県つくば市高須賀字入口 20番1
🚉首都圏新都市鉄道 / 万博記念公園 徒歩55分
売却基準価額 (裁判所評価額)
315万円
首都圏新都市鉄道 / 万博記念公園 徒歩55分(3.5 km)
三妻 徒歩56分(3.6 km)
物件の概況
| contact_url | https://www.bit.courts.go.jp/info/info_31531.html |
|---|---|
| 入札期間 | 令和08年05月08日 〜 令和08年05月15日 |
| 開札期日 | 令和08年05月22日 |
| 公示開始日 | 令和08年04月13日 |
| 閲覧開始日 | 令和08年04月13日 |
🤖 AI 総合分析レポート
機能アップデート中
機能は現在開発中です。
次期バージョンでアップデートされる予定です。




















