宮崎県 宮崎市宮崎県宮崎市高岡町下倉永字本町 266番2
🚉JR日豊線 / 宮崎神宮 徒歩134分
売却基準価額 (裁判所評価額)
375万円
JR日豊線 / 宮崎神宮 徒歩134分(8.5 km)
九州旅客鉄道 / 宮崎 徒歩141分(9.0 km)
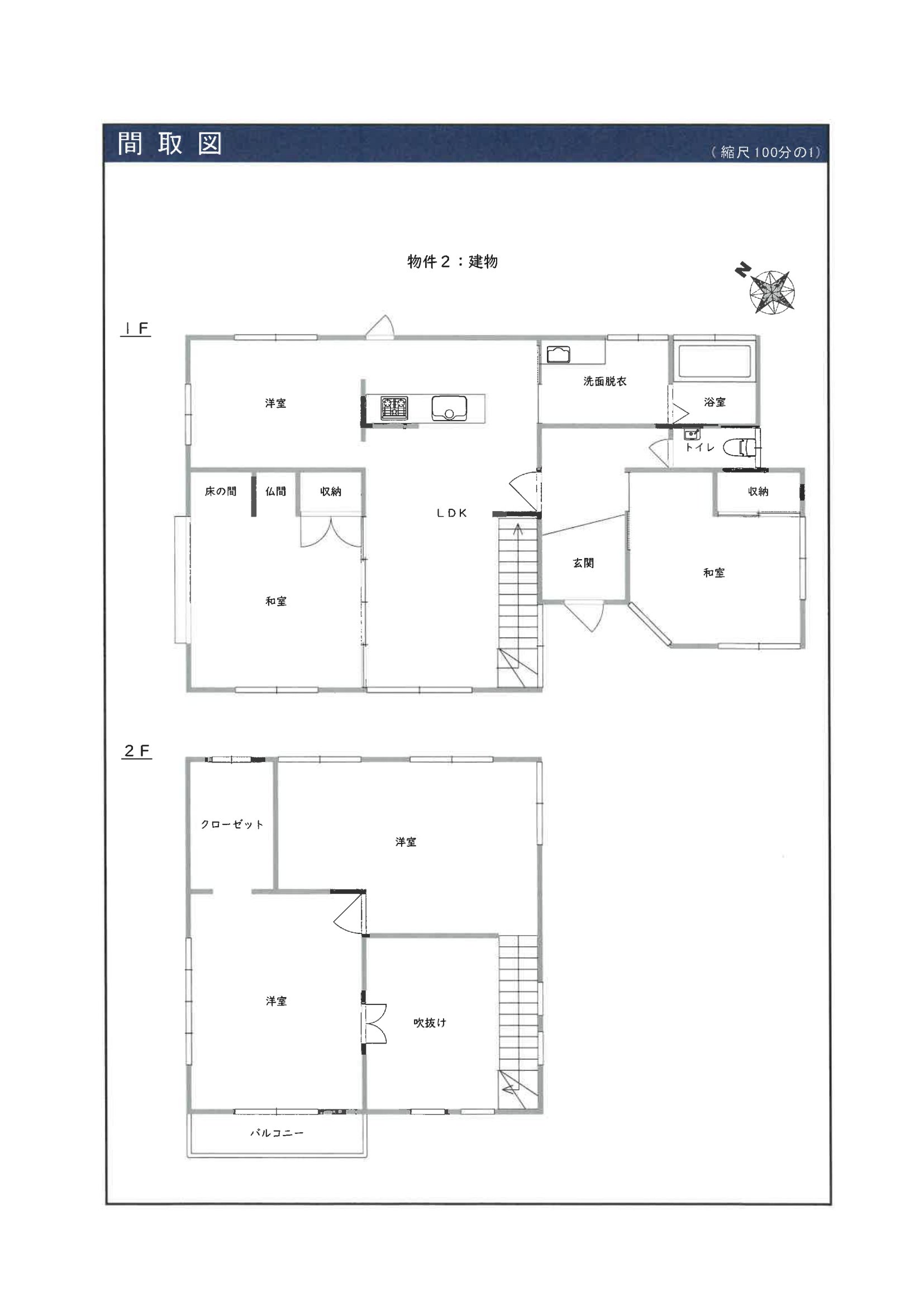
物件の概況
| contact_url | https://www.bit.courts.go.jp/info/info_36711.html |
|---|---|
| 入札期間 | 令和08年04月30日 〜 令和08年05月08日 |
| 開札期日 | 令和08年05月14日 |
| 公示開始日 | 令和08年04月16日 |
| 閲覧開始日 | 令和08年04月16日 |
🤖 AI 総合分析レポート
機能アップデート中
機能は現在開発中です。
次期バージョンでアップデートされる予定です。



















