宮崎県 日南市宮崎県日南市南郷町榎原字白坂 乙140番1
🚉JR日南線 / 榎原 徒歩15分
売却基準価額 (裁判所評価額)
456万円
JR日南線 / 榎原 徒歩15分(0.9 km)
JR日南線 / 谷之口 徒歩59分(3.7 km)
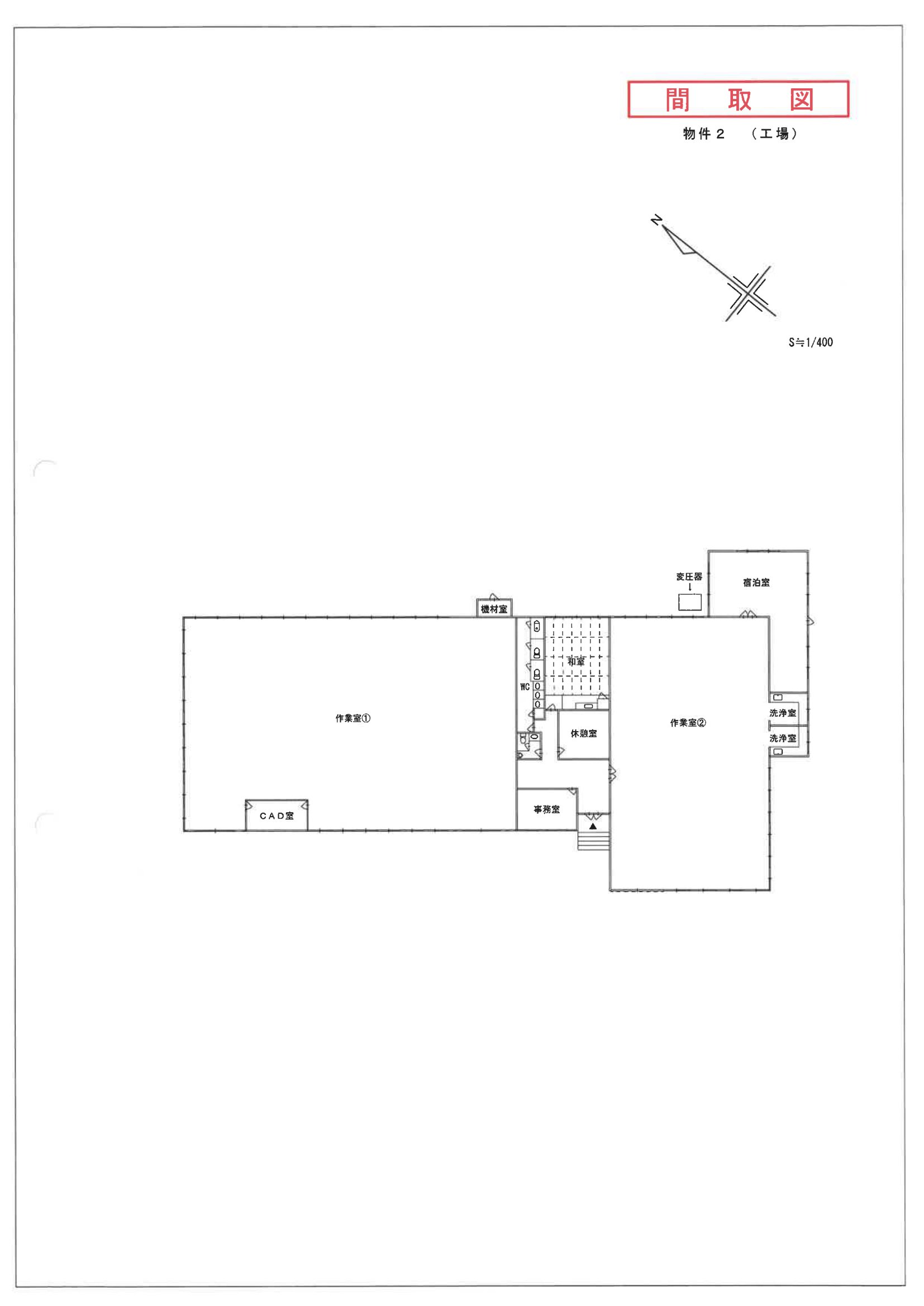
物件の概況
| contact_url | https://www.bit.courts.go.jp/info/info_36711.html |
|---|---|
| 入札期間 | 令和08年04月30日 〜 令和08年05月08日 |
| 開札期日 | 令和08年05月14日 |
| 公示開始日 | 令和08年04月16日 |
| 閲覧開始日 | 令和08年04月16日 |
🤖 AI 総合分析レポート
機能アップデート中
機能は現在開発中です。
次期バージョンでアップデートされる予定です。




















