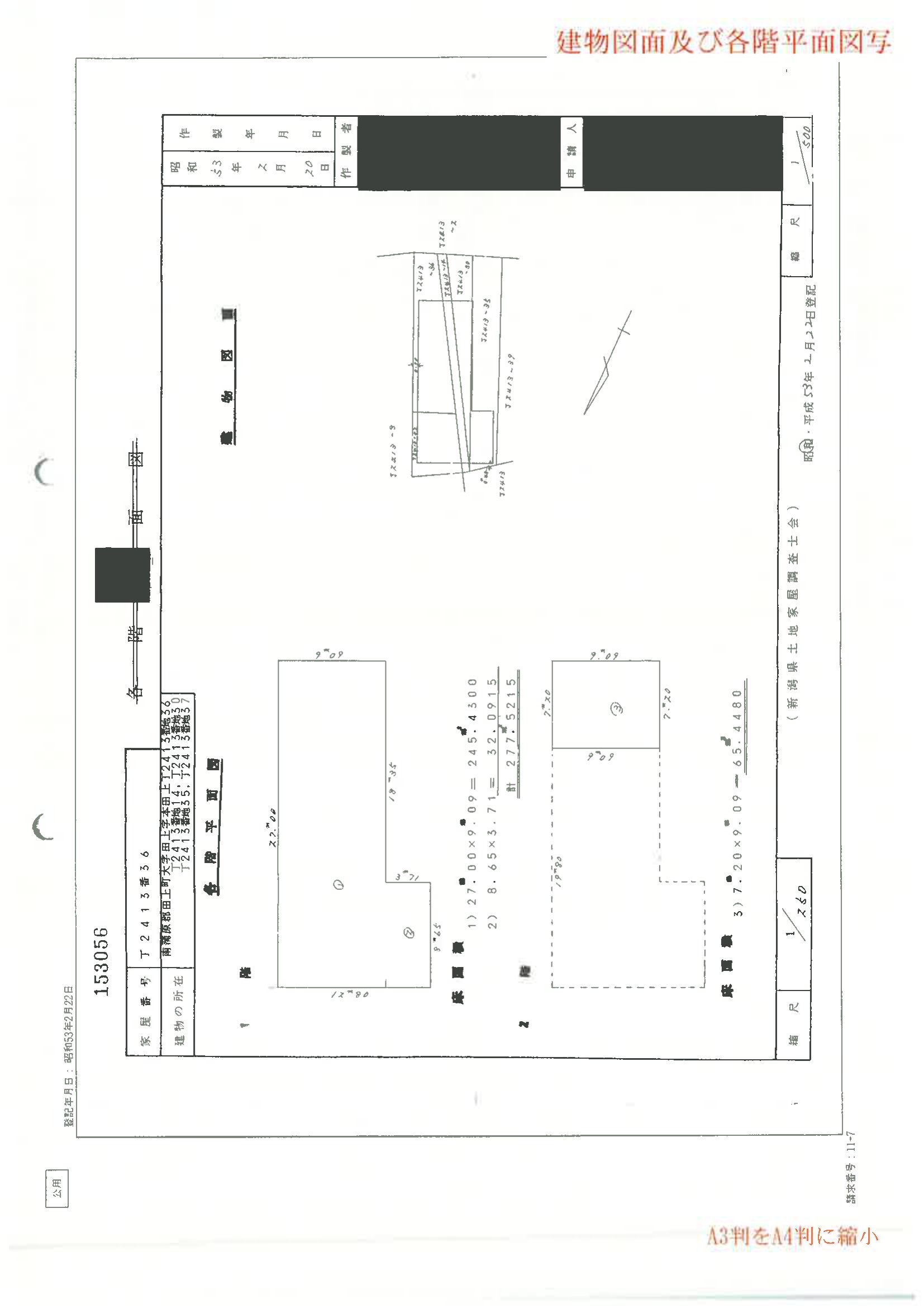
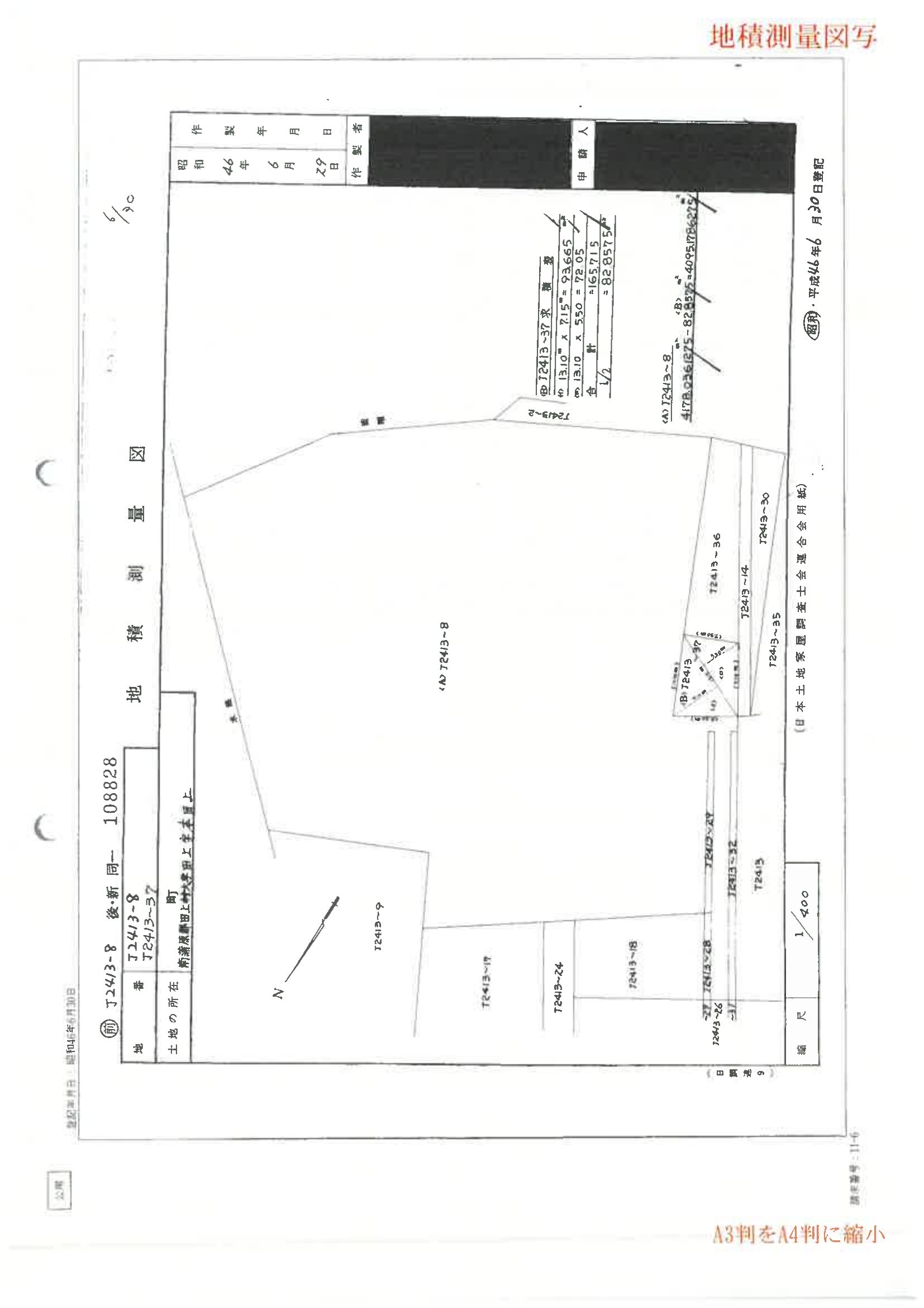
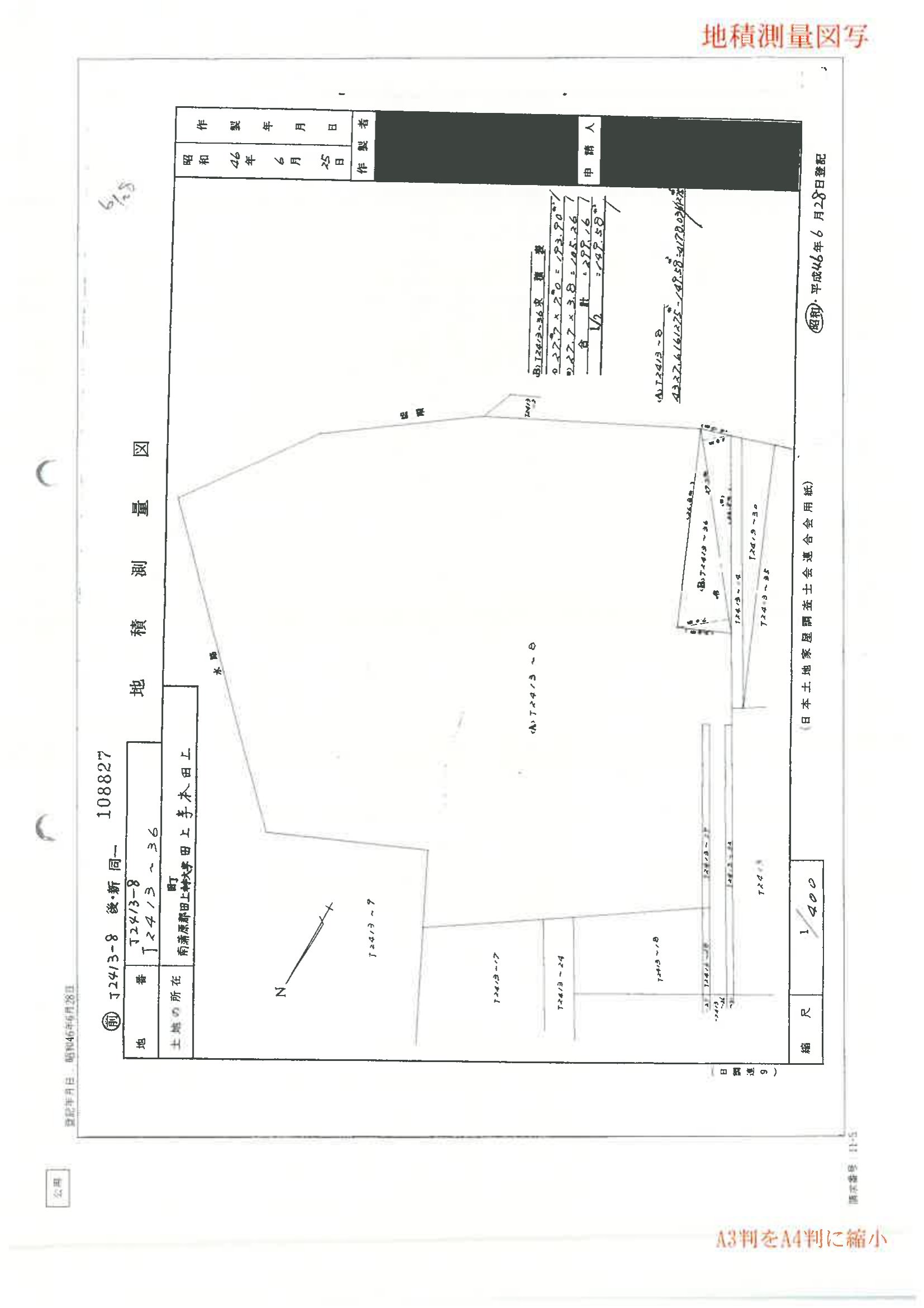
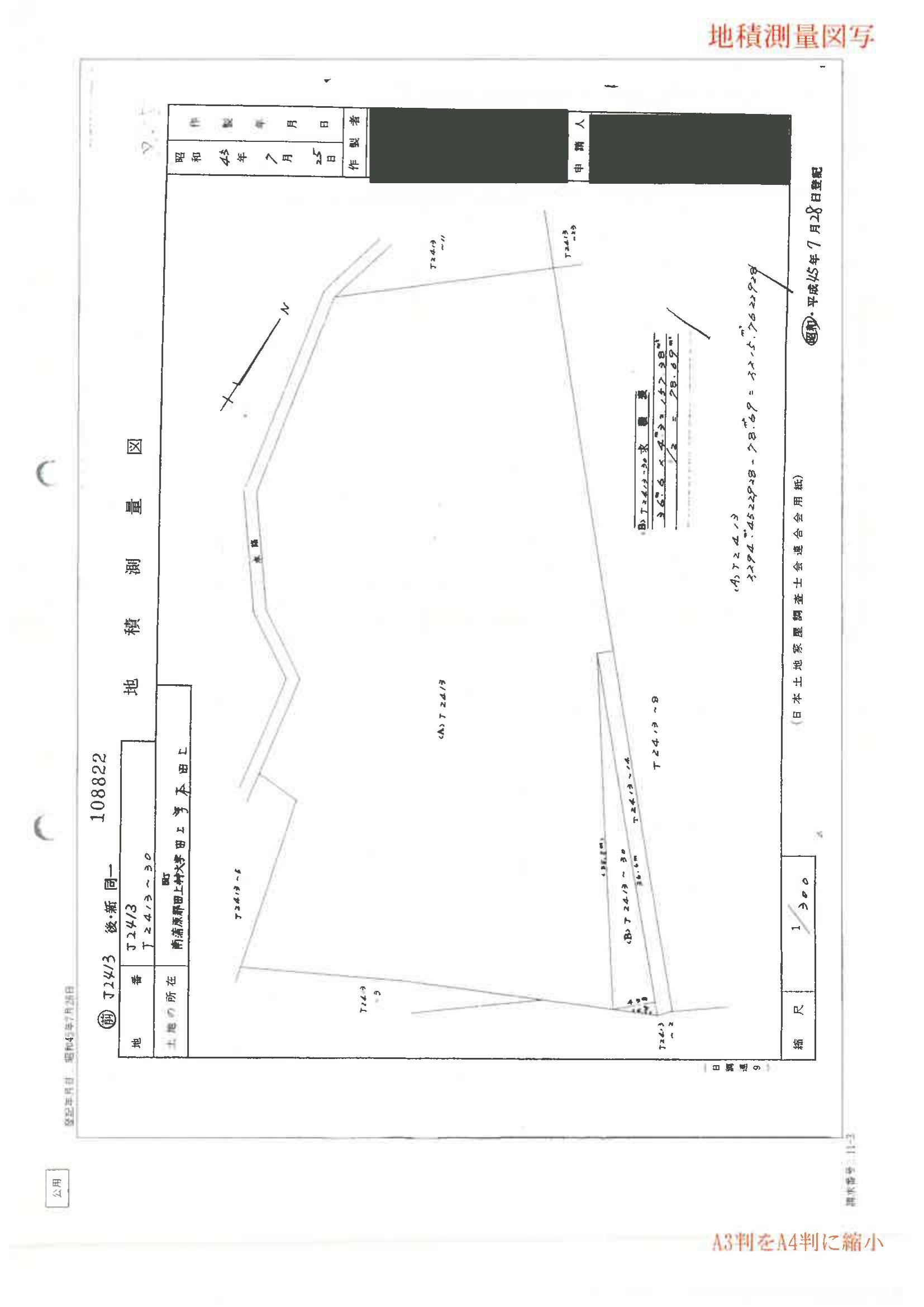
新潟県 南蒲原郡新潟県南蒲原郡田上町大字田上字本田上 丁2413番14
🚉田上 徒歩24分
売却基準価額 (裁判所評価額)
242万円
田上 徒歩24分(1.5 km)
羽生田 徒歩26分(1.6 km)
物件の概況
| contact_url | https://www.bit.courts.go.jp/info/info_32141.html |
|---|---|
| 入札期間 | 令和08年05月15日 〜 令和08年05月22日 |
| 開札期日 | 令和08年05月27日 |
| 公示開始日 | 令和08年04月03日 |
| 閲覧開始日 | 令和08年04月03日 |
🤖 AI 総合分析レポート
機能アップデート中
機能は現在開発中です。
次期バージョンでアップデートされる予定です。




















